SUCHEN
Büro zu vermieten in Wickrange
- Typ : Büro
- Wohnfläche : +/-3.500,00 m2
- Grundstücksfläche : +/- 0 m2
- Mietpreis : Mietpreis
Energieklasse :
energiesparend
hoher Energieverbrauch
Wärmedämmung Klasse :
B
Beschreibung
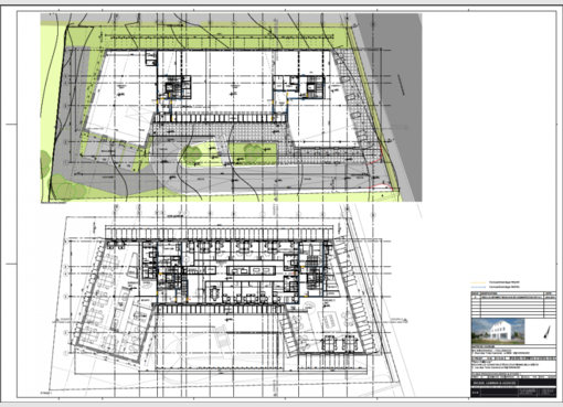
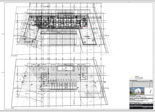
FUTURE CONSTRUCTION d'un Immeuble Commercial et Administratif d’une surface totale de 3500 m2, situé à Wickrange, se composant comme suit :Niveau 0 : surfaces de commerce allant de 200 à 825m2
Niveau +1: surfaces de bureaux allant de 25 à 834m2
Niveau +2 : surfaces de bureaux 170m2 + terrasse 45m2
Niveau rez-de-jardin:
- dépôt de 232m2
- 15 emplacements de parking intérieurs
Niveau -1:
- caves
- 40 emplacements de parking intérieurs
Ausstattung
Aménagement spécifique
Nb de parking externe15
Nb de parking interne40


